Fara í efni

Grunnskólinn stækkar og meira til

16.04.2025
Fréttir

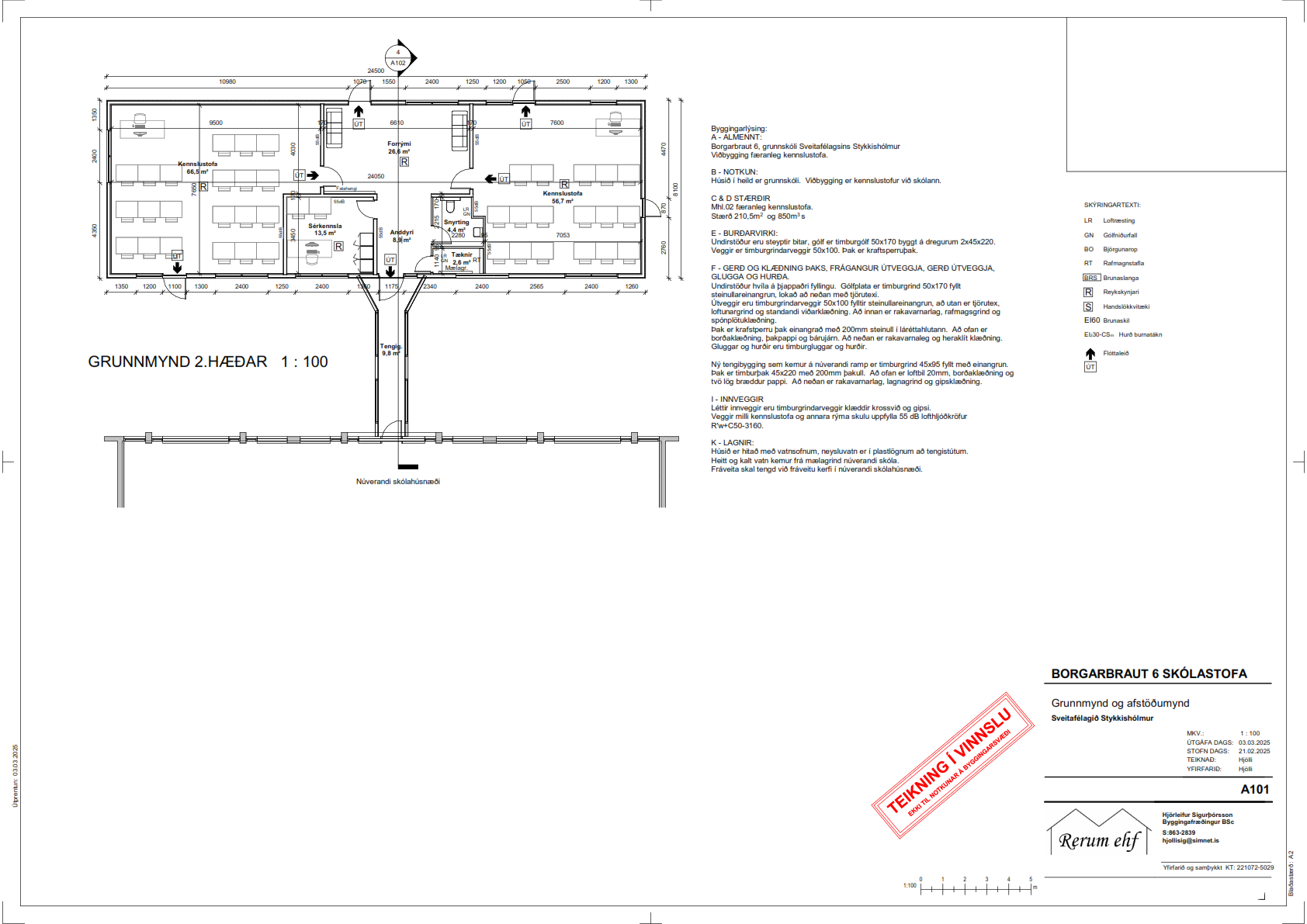
Eins og kunnugt er festi sveitarfélagið nýverið kaup á færanlegum húseiningum. Húseiningarnar voru seldar á uppboði frá Reykjavíkurborg og stóðu áður við Dalskóla. Einingarnar eru um 480 fermetrar að stærð, en þar af er 178 fermetra einingahús úr timbri sem nýtt verður sem tvær kennslustofur, sérkennslurými og opið rými til kennslu. Þar að auki er salerni í húsinu. Fasteignamat á heildarpakkanum 2025 er 92.210.000.- kr. en sveitarfélagið Stykkishólmur átti hæsta boð í húsin sem nam 5.062.000 kr. Búið er að undirbúa fyrir komu húsanna en flutningur hófst á mánudagskvöldið 14. apríl. Hluti húsanna er nú þegar kominn í Hólminn en beðið er betra veðurs til að flytja rest.

Hluta eininganna verður komið fyrir við gaflinn á íþróttamiðstöðinni, þar sem gengið er út úr stúkunni. Einingarnar sem þar verða staðsettar verða m.a. nýttar undir Regnbogaland og að hluta til fyrir X-ið. Þá hefur jarðvegur meðal annars verið undirbúinn við flugstöð og í Nýrækt þar sem hluti bygginganna verður nýttur. Húsnæðismál grunnskólans voru tekin til umræðu á fundi skóla- og fræðslunefndar, 18. mars síðastliðinn. Á fundinum gerði bæjarstjóri grein fyrir fyrirhuguðum framkvæmdum á lóð skólans en í fjárhagsáætlun sveitarfélagsins var einmitt áhersla lögð á að koma til móts við vaxandi húsnæðisþörf skólans. Skóla- og fræðslunefnd fagnaði áætlunum sveitarfélagsins í þessum efnum og taldi nefndin að með auknum húsakosti skapist spennandi tækifæri til skólaþróunar.

„Húsnæðismál skólans hafa verið til umræðu undanfarið og við erum ákaflega ánægð með þessa lendingu. Það verður spennandi að fá þessar viðbætur við starfsemi skólans og rýmka til fyrir nemendur og starfsfólk.“ - Segir Þóra Margrét Birgisdóttir, skólastjóri Grunnskólans í Stykkishólmi.

Með vaxandi nemendafjölda grunnskólans hefur sveitarfélagið undanfarin ár ráðist í ýmsar aðgerðir til að nýta rými skólans sem best og mæta ákalli skólans um bættan aðbúnað. Bæjarstjórn tók á sínum tíma ákvörðun um að sameina rekstur skólabókasafnsins og Amtsbókasafnsins í þeim tilgangi að auka hagræðingu og bæta aðstöðu. Með byggingu Amtsbókasafnsins og færslu skólabókasafnsins, losnaði um kennslurými fyrir skólann og síðar var á árinu 2019 ákveðið að nýta ljósmyndasal bókasafnsins til kennslu. Nýlegar breytingar og endurbætur í kjallara skólans, en unnið var að þeim framkvæmdum á árinu 2022, miðuðu að því að finna Regnbogalandi góða staðsetningu og bæta nýtingu á rými skólans enn fremur.

Í dag starfa um 50 manns við Grunnskólann í Stykkishólmi og eru nemendur 178 talsins. Til samanburðar var nemendafjöldi við grunnskólann á árunum 2012-2022 á bilinu 145 til 160, en meðaltalsfjöldi á þeim árum var 151 nemandi. Þrátt fyrir að markviss skref hafi verið tekin á undanförnum árum til að mæta húsnæðisþörfum skólans og skapa skólanum aukið rými, þá var ljóst að núverandi rými var ekki nægt til að skapa metnaðarfullar aðstæður til skólaþróunar m.t.t. fjölda barna og starfsfólks. Þannig var að mati bæjarstjórnar og skólastjórnenda brýn þörf á auknu kennslurými.

Jakob Björgvin, bæjarstjóri, tekur undir með skólastjóra og segir málið fagnaðarefni. „Eftir flutning húseininganna verður í forgangi að standsetja þau húsnæði sem nýta á til kennslu og fyrir Regnbogaland og stefnt að því að þau verði tilbúin í haust. “

Þá segir Jakob Björgvin jafnframt að það sé ekki síst kostur með þessari fjárfestingu að verið sé með hagkvæmum hætti að mæta mörgum stórum áskorunum sem sveitarfélagið stóð frammi fyrir á einu bretti. „Þessar einingar munu nefnilega ekki einungis nýtast fyrir skólastarf, sem var þó aðal áherslan með þessum kaupum, heldur erum við einnig leysa aðrar áskoranir sem við höfum staðið frammi fyrir, t.d. geymsluhúsnæði fyrir sveitarfélagið, bætta aðstöðu á hafskipabryggju og nýtt húsnæði fyrir Skógræktarfélag Stykkishólms sem var stefnt að því að fjárfesta í á næsta ári. Allt þetta erum við að leysa með þessum kaupum. “

Lögð var rík áhersla í fjárhagsáætlun sveitarfélagsins fyrir árið 2025 að mæta húsnæðisþörf skólans líkt og fjárfestingaráætlun sveitarfélagsins ber með sér. Þá er einnig verið að bregðast við þeim áskorunum sem taldar voru veigamestar í skóla- og frístundamálum í skólastefnu sveitarfélagsins frá árinu 2022, bæði hvað varðar skólann og nýja staðsetningu Regnbogalands, en með því að tengja húsnæði Regnbogalands við íþróttamiðstöð mun það einfaldar til muna aðgengi barna í 1-4 bekk sem nýtir þjónustu Regnbogalands að íþróttastarfi.

„Við erum í raun að framfylgja þessari stefnumörkun bæjarstjórnar með þessum kaupum og fáum í kaupbæti meira til. Það má segja að með því að hugsa í lausnum höfum við náð að slá margar flugur í einu höggi. En þessi viðbót er fyrst og fremst að mínu mati fagnaðarefni fyrir börnin okkar og starfsfólk, enda er aðal ávinningur þessarar fjárfestingar aukið rými til kennslu sem skapar enn betri vinnuaðstæður fyrir starfsfólk og nemendur skólans. Það er auðvitað forgangsmál að skapa hér metnaðarfullar aðstæður og umhverfi fyrir fólkið okkar þar sem því getur liðið vel, en í þannig umgjörð fá börnin okkar og starfsfólk aukin tækifæri til að blómstra í leik og starfi. Það er auðvitað mikilvægast af öllu.” - Segir Jakob Björgvin.

Undirbúningur á lóð Grunnskólans
Getum við bætt efni síðunnar?