Fara í efni

Auglýsing um skipulag

19.12.2019
Fréttir

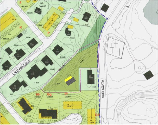
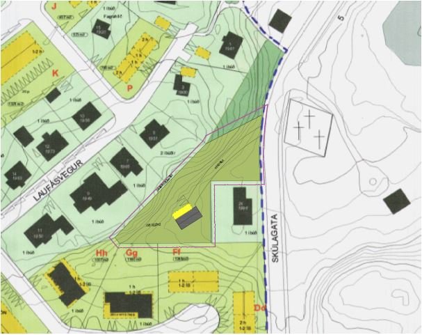
Líkt og áður var auglýst  samþykkti bæjarstjórn Stykkishólmsbæjar þann 31. október 2019, að auglýsa tillögu að breytingu á deiliskipulagi miðbæjar Stykkishólms,Skúlagata 26a samkvæmt 1. mgr. 43. gr. skipulagslaga nr. 123/2010.

Tillagan afmarkast með aðkomu frá Skúlagötu og lóðum semliggja við Laufásveg og Skúlagötu. Breytingin felst í að opnu grænu svæði íbæjarlandi, verði breytt í íbúðarhúsalóð og að byggingu sem á að fjarlægjasamkvæmt gildandi skipulagi, merkta sk, verði leyft að standa og endurbyggt semíbúðarhús.

Tillagan hefur verið til kynningar á skrifstofu skipulagsfulltrúaHafnargötu 3, Stykkishólmi frá og með 13. nóvember 2019. En vakin er athygli á því að ábendingum og athugasemdum við tillöguna þarf að skilaskriflega eigi síðar en 27. desember 2019.

Eru þeir sem telja sig eiga hagsmuna að gæta hvattir til aðkynna sér tillöguna.

Skila skal ábendingum og athugasemdum til skipulagsfulltrúaStykkishólmsbæjar, Hafnargötu 3, 340 Stykkishólmi eða á netfangið skipulag@stykkisholmur.is

Smelltu hér til að kynna þér breytinguna

Getum við bætt efni síðunnar?