Fara í efni

Fréttasafn

Jan Feb Mar Apr Maí Jún Júl Ágú Sep Okt Nóv Des
Laust starf í Ásbyrgi, Stykkishólmi
Fréttir

Laust starf í Ásbyrgi, Stykkishólmi

Félags- og skólaþjónusta Snæfellinga auglýsir laust til umsóknar starf í Ásbyrgi, hæfingar - og vinnustað fólks með skerta starfsgetu. Um er að ræða starfsmann í dagþjónustu (1 stöðugildi).
07.08.2019
Fundur um ferðaþjónustu í Stykkishólmi
Fréttir

Fundur um ferðaþjónustu í Stykkishólmi

Svæðisgarðurinn Snæfellsnes, Stykkishólmsbær og Efling Stykkishólms boða til fundar um samstarfsverkefni á sviði ferðaþjónustu á Snæfellsnesi með áherslu á Stykkishólm í Amtsbókasafninu þriðjudaginn 23. júlí n.k. kl. 20:00.
18.07.2019
Jón Sindri Emilsson ráðinn aðstoðarmaður bæjarstjóra
Fréttir

Jón Sindri Emilsson ráðinn aðstoðarmaður bæjarstjóra

Jón Sindri Emilsson hefur verið ráðinn sem aðstoðarmaður bæjarstjóra Stykkishólmsbæjar, en alls bárust 41 umsókn um starfið. Hermann Hermannsson hefur gegnt starfi ritara/aðstoðarmanns bæjarstjóra undanfarin ár, en hann hefur sagt starfi sínu lausu. Hermanni er þakkað fyrir góð störf í þágu Stykkishólmsbæjar og óskað velfarnaðar í framtíðarstörfum.
03.07.2019
Atvinna !  Heimaþjónusta í Stykkishólmi
Fréttir

Atvinna ! Heimaþjónusta í Stykkishólmi

Félags- og skólaþjónusta Snæfellinga auglýsir eftir starfsmanni í 80% starf við félagslega heimaþjónustu í Stykkishólmi.
01.07.2019
Útskriftarnemendur með gjöf til leikskólans
Fréttir

Útskriftarnemendur með gjöf til leikskólans

Í morgun komu fulltrúar útskriftarnemenda leikskólans ásamt mæðrum sínum með gjafir til bæði starfsmanna og nemenda. Tilefnið var að þessa dagana eru þau að kveðja leikskólann sinn og færast yfir á næsta skólastig. Þau komu með dýrindis kökur á kaffistofuna og færðu starfsmönnunum nuddtæki sem strax var tekið í notkun og börnunum segulkubba. Starfsfólk leikskólans vill þakka foreldrum og forráðamönnum elstu nemenda okkar innilega fyrir þessa hugulsemi og góða hugsun í okkar garð og þökkum fyrir samstarfið og samveru síðustu árin.
27.06.2019
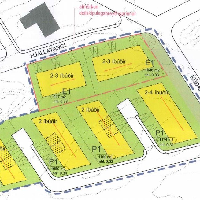
Hjallatangi 1 og 3 augl. á ný eftir skipulagsbreytingu með 50% lækkun á gatnagerðargjöldum
Fréttir

Hjallatangi 1 og 3 augl. á ný eftir skipulagsbreytingu með 50% lækkun á gatnagerðargjöldum

Lóðir að Hjallatanga 1 og 3 eru auglýstar til úthlutunar í Stykkishólmi eftir skipulagsbreytingu með tímabundinni 50% lækkun á gatnagerðargjöldum.
24.06.2019
Vinnudagur á leikskólalóðinni - myndir
Fréttir

Vinnudagur á leikskólalóðinni - myndir

Vaskur hópur foreldra og starfsmanna með Siggu Lóu í verkstjórn og Jón Beck aðalreddara réðst í ýmis verkefni á leikskólalóðinni síðdegis í gær, miðvikudaginn 19. júní. Hafist var handa kl. 17 og endað í grilli tveimur tímum síðar. Á meðal verkefna dagsins var þessi pallur við útieldhúsið okkar sem sést hér á meðfylgjandi mynd, en strax í morgun voru börnin komin þar í leik. Þetta var reglulega skemmtilegt og gaman að sjá hvað allir demdu sér í verkin af miklu frumkvæði og fundu góðar lausnir. Myndir eru komnar inn á heimasíðuna.
20.06.2019
Laust starf baðvarðar í Íþróttamiðstöð og sundlaug Stykkishólms
Fréttir

Laust starf baðvarðar í Íþróttamiðstöð og sundlaug Stykkishólms

Starfsmaður óskast til starfa sem baðvörður í Íþróttamiðstöð Stykkishólmsbæjar og sundlaug Stykkishólms. Starfshlutfallið er 50% og er tímabundið frá u.þ.b. 20. ágúst og til skólaloka vorið 2020.
14.06.2019
Íþróttamiðstöð ? Sundlaug Laust starf (farmtíðarstarf)
Fréttir

Íþróttamiðstöð ? Sundlaug Laust starf (farmtíðarstarf)

Starfsmaður (kona) óskast nú þegar, eða sem allra fyrst, til starfa í Íþróttamiðstöð Stykkishólmsbæjar.
14.06.2019
Lekaleit í hitaveitunni í Stykkishólmi
Fréttir

Lekaleit í hitaveitunni í Stykkishólmi

Þriðjudaginn 18. júní munu Veitur gera lekaleit í lokuðu kerfi hitaveitu í Stykkishólmi. Markmiðið er að auka rekstraröryggi kerfisins og tryggja sem besta nýtingu þess, öllum til hagsbóta. Leitin fer þannig fram að skaðlausu litarefni verður dælt inn á kerfið og í framhaldinu reynt að staðsetja leka og rangar tengingar. Bæjarbúar eru beðnir um að láta Veitur vita ef þeir verða varir við gult vatn á heimilum sínum eða umhverfi á veitur.is/hafa-samband eða í síma 516 6000.
13.06.2019
Getum við bætt efni síðunnar?