Íbúðarlóðir í nýju hverfi í Stykkishólmi auglýstar til úthlutunar og afsláttur á öðrum
Sveitarfélagið Stykkishólmur auglýsir 12 nýjar íbúðarhúsalóðir til úthlutunar í Víkurhverfi í Stykkishólmi. Gatnagerð á svæðinu verður lokið um miðjan júní 2024. Um er að ræða lóðir í nýju og fjölskylduvænu hverfi í mikilli nánd við náttúruna. Stykkishólmur er ört vaxandi sveitarfélag sem skartar fjölbreyttum atvinnuvegum og iðandi mannlífi. Samkvæmt húsnæðisáætlun er mikil eftirspurn eftir húsnæði í Stykkishólmi. Áform eru jafnframt um umfangsmikla atvinnuuppbyggingu á svæðinu og því mun fylgja aukin eftirspurn eftir íbúðarhúsnæði. Blómleg ferðaþjónusta býður ótal skemmtilega afþreyingarmöguleika fyrir heimafólk sem og gesti.
Sveitarfélagið Stykkishólmur auglýsir eftirtaldar lóðir lausar til úthlutunar, annars vegar er um að ræða nýjar lóðir í Víkurhverfi og hins vegar eldri lóðir í sveitarfélaginu með afslætti, með áætluðum gatnagerðargjöldum. Vakin er athygli á því að gatnagerðargjöld taka ekki mið af stærð húsnæðis heldur hámarks byggingarheimild lóða.
Íbúðarlóðir í Víkurhverfi
Bæjarstjórn hefur ákveðið að auglýsa til úthlutunar íbúðarhúsalóðir í Víkurhverfi.
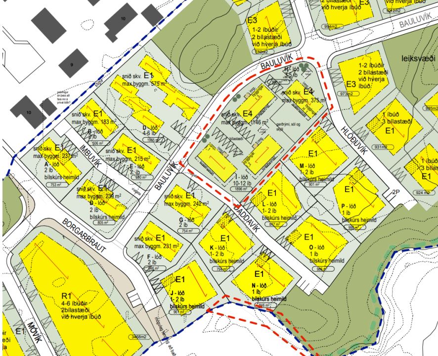
Um er að ræða eftirtaldar lóðir:
- A-lóð – Parhúsalóð (2 íbúðir) með bílskúrsheimild - Stærð 753 m2
- B-lóð – Parhúsalóð (2 íbúðir) - Stærð 506 m2
- D-lóð – Ein lóð fyrir 4-6 sex íbúðir - Stærð 1965 m2
- Ð-lóð – Parhúsalóð með bílskúrsheimild - Stærð 805 m2
- E-lóð – Parhúsalóð - Stærð 590 m2
- F-lóð – Parhúsalóð - Stærð 646 m2
- G-lóð – Parhúsalóð - Stærð 754 m2
- J-lóð – Ein lóð fyrir 1-2 íbúðir - Stærð 961 m2
- K-lóð – Ein lóð fyrir 1-2 íbúðir - Stærð 794 m2
- L-lóð – Ein lóð fyrir 1-2 íbúðir - Stærð 847 m2
- N-lóð – Einbýlishús - Stærð 846 m2
- O-lóð – Einbýlishús - Stærð 986 m2
Hér má sjá yfirlit yfir byggingarleyfis- og gatnagerðargjöld
Skilmálar, forgangsröðun, greiðslur og úthlutunarreglur vegna lóða í Víkurhverfi:
Lóðirnar eru auglýstar á grunni nýsamþykktra úthlutunarreglna og mun útdrætti verða beitt við úthlutun lóða.
Þar sem um nýjar reglur er að ræða verður forgangsröðun í 2. og 3. mgr. í gr. 4.1.2. ekki fylgt í þessari úthlutun. Einstaklingar og lögaðilar skulu njóta sama forgangs við úthlutun að lóðum A, B, E, Ð, G og F í þessari úthlutun, en lögaðilar njóta forgangs varðandi D-lóð (4-6 íbúðir). Einstaklingar njóta forgangs á lóðir J, K, L, N og O.
Einstaklingar skulu við lóðarumsókn leggja fram staðfestingu á greiðslugetu og skal upphæð fyrir greiðslumat miðast við fjárfestingu á húsnæði að þeirri stærð sem skipulagsskilmálar segja til um (greiðslumat m.v. lágmarksstærð). Fyrirtæki skulu leggja fram yfirlýsingu viðskiptabanka um greiðslugetu fyrirtækis.
Vakin er athygli á að við úthlutun lóða er litið á hjón/sambýlisfólk sem einn og sama umsækjandann/aðilann.
Staðfestingargjald vegna lóðaúthlutunar er kr. 200.000 og greiðist samhliða umsókn. Telst umsókn ekki gild sé staðfestingargjald ekki greitt. Staðfestingargjald verður endurgreitt þeim sem ekki hljóta lóðarúthlutun. Þeir sem fá úthlutaðri lóð greiða kr. 29.000 úthlutunargjald og munu kr. 171.000 ráðstafast í til greiðslu gatnagerðagjalda.
Sérstök athygli er vakin á því að greiða skal 50% gatnagerðargjalda innan 30 daga frá tilkynningu um úthlutun lóðar, en eftirstöðvar gatnagerðargjalda, 50%, skal greiða ásamt öðrum tilskildum gjöldum áður en byggingaleyfi er gefið út. Byggingarleyfisgjald og önnur gjöld greiðast með venjubundnum hætti við samþykkt byggingaráforma. Auk gatnagerðargjalda skal lóðarhafi, við úthlutun lóðar, greiða kr. 830 af hverjum fermetra lóðar miðað við byggingarvísitölu 116,4 2021.
Þá er vakin athygli á nýjum skilmálum hvað varðar framkvæmdafrest, þ.m.t. að umsókn um byggingarleyfi skal hafa borist sveitarfélaginu innan 6 mánaða frá því að úthlutunardegi.
Auglýsingafrestur er til 21. febrúar 2024.
Áður en sótt er um eru umsækjendur hvattir til að kynna sér vel nýsamþykktar reglur við úthlutun lóða í Stykkishólmi, sér í lagi gr. 2.1.2 um umsókn og fylgigögn og 3.1.3 um hæfi umsækjenda, ásamt samþykkt um gatnagerðargjald, lóðargjald o.fl. í Sveitarfélaginu Stykkishólmi.
Nánar um lóðirnar í Víkurhverfi og skipulagsáætlanir
Deiliskipulag fyrir Víkurhverfi var upphaflega samþykkt í bæjarstjórn Stykkishólms 25. janúar 2007. Tillaga að breytingu á deiliskipulagi Víkurhverfis var svo samþykkt í bæjarstjórn 11. apríl 2018. Í október 2022 samþykkti bæjarstjórn breytingu á skipulaginu í Víkurhverfi með það að markmiði að stuðla að betri landnýtingu með fjölgun lóða á miðsvæði hverfisins, auka fjölbreytileika íbúðarkosta, fegra heildaryfirbragð hverfisins, huga að auknu umferðaröryggi, breyta botnlangagötum í vistgötur og tryggja gott aðgengi að verslun, þjónustu og útivistarsvæðum. Sjá hér skýringarhefti með umræddum skipulagsbreytingum.
Vakin er sérstök athygli á því að í vinnslu er deiliskipulagstillaga á svæðinu og er lóðarúthlutun með fyrirvara um gildistöku þeirrar skipulagsbreytinga, en tillagan er tilkomin vegna fyrirhugaðrar uppbyggingar 12 íbúða fyrir Brák íbúðafélag hses. á 2800 m2 reit sem breytingin tekur til.
Lóðir eru að mestu óhreyfðar, búið verður að leggja lagnir að lóðum. Götur verða malbikaðar samhliða uppbyggingu húsa á lóðum, en ekki liggur fyrir hvenær verður gengið frá yfirborði. Varðandi dýpt niður á fast má á prufuholum á mynd hér til viðmiðunar sem sveitarfélagið nýtti við gerð deiliskipulags, en áréttað er sveitarfélagið ber ekki ábyrgð á að umræddar dýptir standist og ber lóðarhafi áhættu af því.
Lóðum er úthlutað með fyrirvara um frágang endanlegra lóðarblaða og hæðarkóta og þeirra skipulagsbreytinga sem unnið er að í Víkurhverfi (breytingar eru skipulagsferli og ekki liggur endanleg ákvörðun fyrir), sbr. skýringarmynd fyrir neðan (skipulagsbreytingar eru innan rauðu punktalínanna).
Aðrar íbúðarhúsalóðir í Stykkishólmi auglýstar með afslætti
Bæjarstjórn samþykkti á fundi sínum í desember afslátt/lækkun skv. 6. gr. laga nr. 153/2006, sbr. og 6. gr. samþykkta um gatnagerðargjald í sveitarfélaginu, á gatnagerðargjöldum af byggingum íbúðarhúsnæðis m.v. gjaldskrá 2024 á eftirtöldum lóðum í Stykkishólmi og að lækkunarheimildin gildi til og með 31. desember 2024.
Um er að ræða eftirtaldar lóðir:
Lóðir á 90% afslætti:
- Sundabakki 2 – Einbýlishúsalóð 750 m2
- Laufásvegur 19 - Par,- eða einbýlishúsalóð – 830 m2
- Hjallatangi 9 – Einbýlishúsalóð - Stærð 888 m2
- Hjallatangi 13 - Einbýlishúsalóð - Stærð 949 m2
- Hjallatangi 15 - Einbýlishúsalóð - Stærð 936 m2
- Hjallatangi 19 - Einbýlishúsalóð - Stærð 920 m2
Lóðir á 25% afslætti:
- Hjallatangi 36 - Einbýlishúsalóð - Stærð 820 m2
- Hjallatangi 42 - Einbýlishúsalóð - Stærð 813 m2
Hér má sjá yfirlit yfir byggingarleyfis- og gatnagerðargjöld
Skilmálar, forgangsröðun, greiðslur og úthlutunarreglur vegna lóða á afslætti:
Lóðirnar eru auglýstar á grunni nýsamþykktra úthlutunarreglna og mun útdrætti verða beitt við úthlutun lóða. Við úthlutun ofangreindra íbúðarhúsalóða skulu einstaklingar njóta forgangs við úthlutun. Ekki er gerð krafa um greiðslumat hjá einstaklingum eða yfirlýsingu viðskiptabanka í tilviki fyrirtækja varðandi ofangreindar lóðir.
Þá skal umsækjandi greiða 100.000 kr. staðfestingargjald fyrir hverja lóð sem sótt er um og er staðfestingargjald óafturkræft verði umsækjanda úthlutað viðkomandi lóð. Þeir sem fá úthlutaðri lóð greiða kr. 29.000 úthlutunargjald og munu kr. 71.000 ráðstafast í til greiðslu gatnagerðagjalda.
Sérstök athygli er vakin á því að greiða skal 50% gatnagerðargjald innan 30 daga frá tilkynningu um úthlutun lóðar, en eftirstöðvar gatnagerðargjalds ásamt öðrum tilskildum gjöldum á eftirtöldum lóðum áður en byggingarleyfi er gefið út.
Áður en sótt er um eru umsækjendur hvattir til að kynna sér vel nýsamþykktar reglur við úthlutun lóða í Stykkishólmi, sér í lagi gr. 2.1.2 um umsókn og fylgigögn og 3.1.3 um hæfi umsækjenda, ásamt samþykkt um gatnagerðargjald, lóðargjald o.fl. í Sveitarfélaginu Stykkishólmi.
Auglýsingafrestur er til og með 21. febrúar 2024.
Hægt er að senda inn lóðarumsókn í gegnum íbúagátt Stykkishólms.
